Documentația de execuție este pregătită pentru următoarele țări:

Proiect de casa 128 m²: Parter, 4 Dormitoare, 2 Bai, Bucatarie deschisa, Garaj

Proiect
10622R
Finalizat
Semnat și ștampilat
CD Lipsă
Parametri cheie
128
Suprafață utilă m²
2 + 0
Băi + Toalete
4 + 0
Dormitoare + Birou
1
Mașini
Projekt architektoniczno-budowlany zawiera

opis techniczny

rzuty wszystkich kondygnacji

rzut więźby dachowej

rzut dachu

przekroje

elewacje

Projekt techniczny zawiera

projekt konstrukcji

projekt instalacji sanitarnych

projekt instalacji elektrycznej

projekt instalacji wentylacji mechanicznej

Do projektu dodajemy bezpłatnie

teczka do przechowywania dokumentacji projektowej

dziennik budowy

tablicę informacyjną na budowę - po otrzymaniu projektu domu i wypełnieniu ankiety

zgodę na wprowadzenie zmian do projektu

dokumentację projektową w plikach pdf

Vrei să faci câteva schimbări?

Acest proiect de casă poate fi modificat pentru a se potrivi stilului de viață al familiei tale și caracteristicilor terenului tău.

Arhitectul acestui proiect nu este din țara ta.

Dacă dorești să modifici acest proiect de casă, ai două opțiuni:

1. Modificări realizate de arhitectul original: Lucrează direct cu arhitectul original pentru a achiziționa un concept digital modificat, apoi trimite-l arhitectului tău local pentru a comanda documentația de execuție.

2. Modificări realizate de arhitectul tău local: Achiziționează conceptul digital în forma originală, lucrează cu arhitectul tău local pentru a face modificări și apoi continuă cu comanda documentației de execuție.

Video
Planuri de etaj
Parter
10622R - Parter
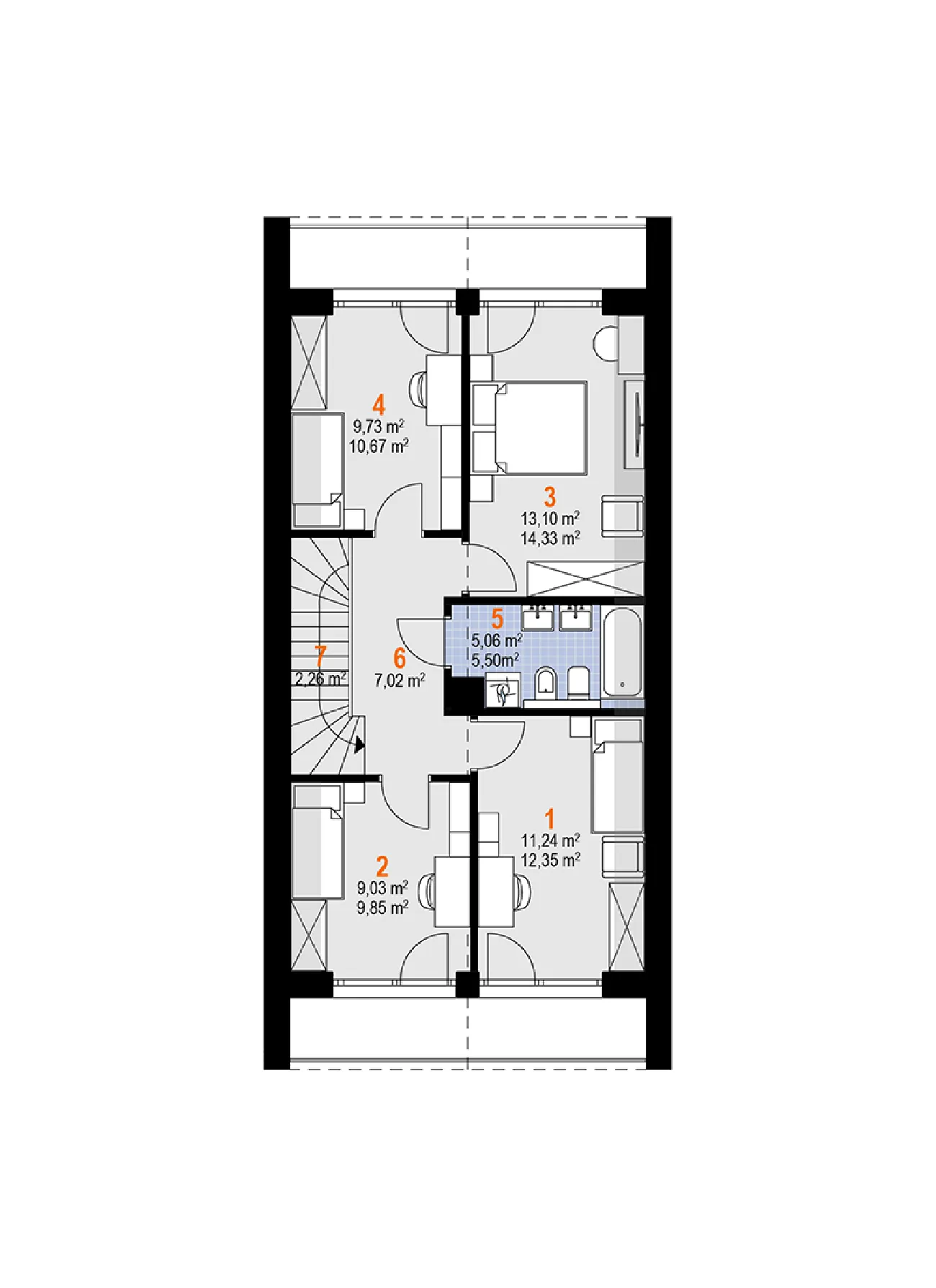
Etaj 1
10622R - Etaj 1
Specificații complete
Suprafață
Suprafața la sol: 89 m²
Suprafața desfășurată: 189 m²
Demisol: 0 m²
Suprafață utilă: 128 m²
Dimensiuni
Adâncime 14.60 m
Lățime 7.00 m
Înălțime 8.71 m
Materiale
Cadru de lemn
Bloc ceramic
Betonul celular autoclavizat
Finisaje exterioare
Tablă fălțuită
Camere
Băi : 2
Wc : 0
Dormitoare : 4
Tambur
Debara
Fundație
Placă
Bandă
Stil arhitectural
Tip Hambar
Contemporan
European
Modern
Caracteristici exterioare
Balcon
Terasă din lemn
Ferestre panoramice
Ferestre mari
Ferestre de la podea la tavan
Caracteristici interioare
Dormitor matrimonial la etaj
Dormitoare separate
Bucătărie deschisă
Bucătărie și sufragerie
Zonă de luat masa
Insulă de bucătărie
Garaj
9: 18 m²
Mașini: 1
Integrat
Acces Frontal
Acoperiș
Suprafața acoperișului: 142.00m²
În două ape
Coamă perpendiculară pe stradă
Unghiul acoperișului : 45º (±2º)
Arhitect
Archeton Archeton Birou de arhitectură country with code pl Poland
country with code pl Poland
Lesser Poland Voivodeship, Kraków, ul. Cystersów 9
Pachet de proiect

Proiectul de casă ar putea să nu respecte reglementările de construcție din țara ta.

Arhitectul nu vinde concept digital și documentația de execuție pentru țara dvs. Puteți bifa căsuța „Norme compatibile” și vedea „Pachet de proiect” pentru țara arhitectului.

Cât va costa construcția?
Deviz
60
Acest deviz îți va oferi estimări de costuri în funcție de locație și materialele de construcție.