Documentația de execuție este pregătită pentru următoarele țări:
Proiect
60922R
Finalizat
Fără semnătură și fără ștampilă
CD Lipsă
Parametri cheie
90
Suprafață utilă m²
1 + 1
Băi + Toalete
3 + 1
Dormitoare + Birou
1
Mașini (Carport)
Vrei să faci câteva schimbări?

Acest proiect de casă poate fi modificat pentru a se potrivi stilului de viață al familiei tale și caracteristicilor terenului tău.

Arhitectul acestui proiect nu este din țara ta.

Dacă dorești să modifici acest proiect de casă, ai două opțiuni:

1. Modificări realizate de arhitectul original: Lucrează direct cu arhitectul original pentru a achiziționa un concept digital modificat, apoi trimite-l arhitectului tău local pentru a comanda documentația de execuție.

2. Modificări realizate de arhitectul tău local: Achiziționează conceptul digital în forma originală, lucrează cu arhitectul tău local pentru a face modificări și apoi continuă cu comanda documentației de execuție.

Video
Planuri de etaj
Parter
60922R - Parter
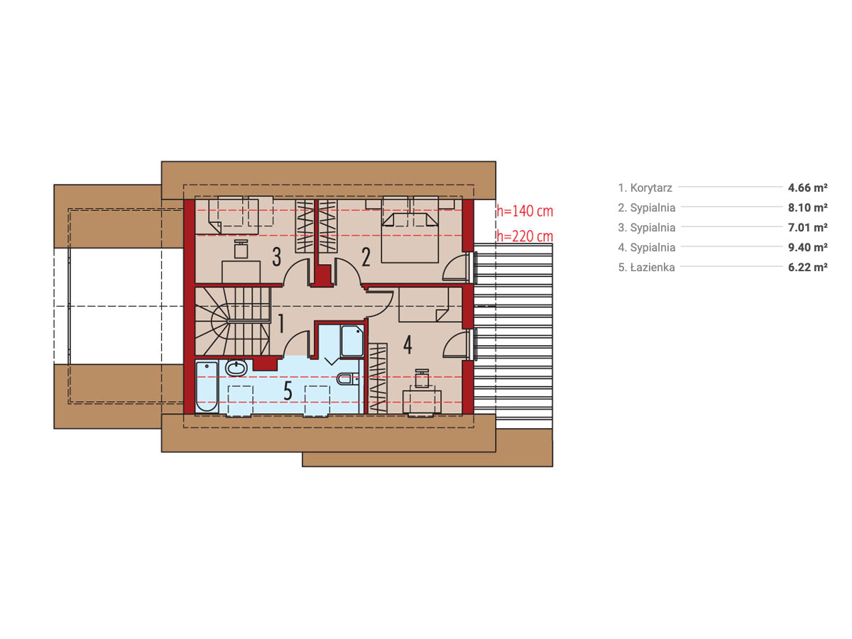
Etaj 1
60922R - Etaj 1
Specificații complete
Suprafață
Suprafața la sol: 98 m²
Suprafața desfășurată: 0 m²
Demisol: 0 m²
Suprafață utilă: 90 m²
Dimensiuni
Adâncime 7.84 m
Lățime 12.94 m
Înălțime 8.16 m
Materiale
Bloc ceramic
Betonul celular autoclavizat
Finisaje exterioare
Tencuială
Camere
Băi : 1
Wc : 1
Dormitoare : 3
Cameră tehnică
Tambur
Birou
Fundație
Placă
Bandă
Stil arhitectural
Cottage
European
Tradițional
Tranzițional
Caracteristici exterioare
Terasă din lemn
Verandă acoperită pe lateralul casei
Caracteristici interioare
Șemineu în living
Dormitor matrimonial la etaj
Dormitoare grupate
Bucătărie deschisă
Bucătărie și sufragerie
Cămară
Zonă de luat masa
Fereastră de colț
Garaj
9: 0 m²
Mașini: 1
Copertină
Acces Frontal
Acoperiș
Suprafața acoperișului: 165.00m²
În două ape
Fereastră de mansardă
Coamă paralelă cu strada
Unghiul acoperișului : 42º (±2º)
Arhitect
ARCHIPELAG ARCHIPELAG Birou de arhitectură country with code pl Poland
country with code pl Poland
Lower Silesian Voivodeship, Wrocław, ul. Aleksandra Ostrowskiego 9/318
Pachet de proiect

Proiectul de casă ar putea să nu respecte reglementările de construcție din țara ta.

Arhitectul nu vinde concept digital și documentația de execuție pentru țara dvs. Puteți bifa căsuța „Norme compatibile” și vedea „Pachet de proiect” pentru țara arhitectului.

Cât va costa construcția?
Deviz
81
Acest deviz îți va oferi estimări de costuri în funcție de locație și materialele de construcție.