Documentația de execuție este pregătită pentru următoarele țări:
Proiect
77478R
Finalizat
Semnat și ștampilat
CD Lipsă
Parametri cheie
202
Suprafață utilă m²
3 + 0
Băi + Toalete
3 + 1
Dormitoare + Birou
2
Mașini
Projekt architektoniczno-budowlany zawiera

opis techniczny

rzuty wszystkich kondygnacji

rzut więźby dachowej

rzut dachu

przekroje

elewacje

Projekt techniczny zawiera

projekt konstrukcji

projekt instalacji sanitarnych

projekt instalacji elektrycznej

projekt instalacji wentylacji mechanicznej

Do projektu dodajemy bezpłatnie

teczka do przechowywania dokumentacji projektowej

dziennik budowy

tablicę informacyjną na budowę - po otrzymaniu projektu domu i wypełnieniu ankiety

zgodę na wprowadzenie zmian do projektu

dokumentację projektową w plikach pdf

Vrei să faci câteva schimbări?

Acest proiect de casă poate fi modificat pentru a se potrivi stilului de viață al familiei tale și caracteristicilor terenului tău.

Arhitectul acestui proiect nu este din țara ta.

Dacă dorești să modifici acest proiect de casă, ai două opțiuni:

1. Modificări realizate de arhitectul original: Lucrează direct cu arhitectul original pentru a achiziționa un concept digital modificat, apoi trimite-l arhitectului tău local pentru a comanda documentația de execuție.

2. Modificări realizate de arhitectul tău local: Achiziționează conceptul digital în forma originală, lucrează cu arhitectul tău local pentru a face modificări și apoi continuă cu comanda documentației de execuție.

Planuri de etaj
Parter
77478R - Parter
Etaj 1
77478R - Etaj 1
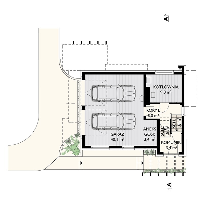
Subsol
77478R - Subsol
Specificații complete
Suprafață
Suprafața la sol: 94 m²
Suprafața desfășurată: 295 m²
Demisol: 66 m²
Suprafață utilă: 202 m²
Dimensiuni
Adâncime 9.00 m
Lățime 12.50 m
Înălțime 8.50 m
Materiale
Bloc ceramic
Betonul celular autoclavizat
Finisaje exterioare
Lemn
Tencuială
Camere
Băi : 3
Wc : 0
Dormitoare : 3
Cameră tehnică
Tambur
Birou
Fundație
Demisol
Stil arhitectural
Contemporan
European
Mediteranean
Minimalist
Modern
Caracteristici exterioare
Balcon
Ferestre mari
Ferestre de la podea la tavan
Caracteristici interioare
Șemineu în living
Dormitor matrimonial la etaj
Dormitoare grupate
Bucătărie deschisă
Living mare
Bucătărie mare
Bucătărie și sufragerie
Zonă de luat masa
Insulă de bucătărie
Garaj
9: 21 m²
Mașini: 2
Subteran
Acces Frontal
Acoperiș
Suprafața acoperișului: 66.00m²
Plat
Unghiul acoperișului : 5º (±2º)
Arhitect
Archeton Archeton Birou de arhitectură country with code pl Poland
country with code pl Poland
Lesser Poland Voivodeship, Kraków, ul. Cystersów 9
Pachet de proiect

Proiectul de casă ar putea să nu respecte reglementările de construcție din țara ta.

Arhitectul nu vinde concept digital și documentația de execuție pentru țara dvs. Puteți bifa căsuța „Norme compatibile” și vedea „Pachet de proiect” pentru țara arhitectului.

Cât va costa construcția?
Deviz
60
Acest deviz îți va oferi estimări de costuri în funcție de locație și materialele de construcție.