Documentația de execuție este pregătită pentru următoarele țări:
Proiect
69707R
Finalizat
Fără semnătură și fără ștampilă
CD Lipsă
Parametri cheie
207
Suprafață utilă m²
2 + 0
Băi + Toalete
3 + 1
Dormitoare + Birou
1
Mașini
Vrei să faci câteva schimbări?

Acest proiect de casă poate fi modificat pentru a se potrivi stilului de viață al familiei tale și caracteristicilor terenului tău.

Arhitectul acestui proiect nu este din țara ta.

Dacă dorești să modifici acest proiect de casă, ai două opțiuni:

1. Modificări realizate de arhitectul original: Lucrează direct cu arhitectul original pentru a achiziționa un concept digital modificat, apoi trimite-l arhitectului tău local pentru a comanda documentația de execuție.

2. Modificări realizate de arhitectul tău local: Achiziționează conceptul digital în forma originală, lucrează cu arhitectul tău local pentru a face modificări și apoi continuă cu comanda documentației de execuție.

Planuri de etaj
Parter
69707R - Parter
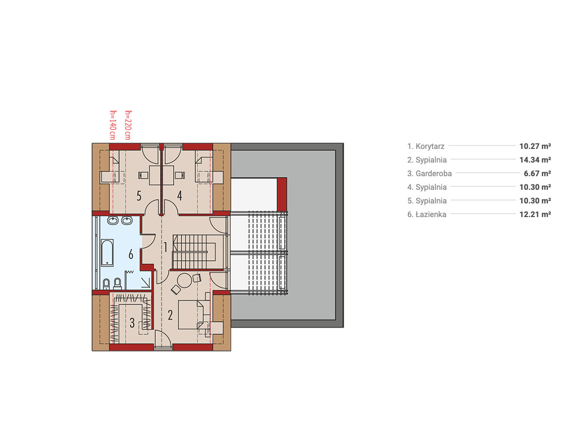
Etaj 1
69707R - Etaj 1
Specificații complete
Suprafață
Suprafața la sol: 195 m²
Suprafața desfășurată: 0 m²
Demisol: 0 m²
Suprafață utilă: 207 m²
Dimensiuni
Adâncime 13.00 m
Lățime 15.70 m
Înălțime 8.54 m
Materiale
Bloc ceramic
Betonul celular autoclavizat
Finisaje exterioare
Lemn
Tencuială
Camere
Băi : 2
Wc : 0
Dormitoare : 3
Cameră tehnică
Tambur
Birou
Dressing în dormitor
Fundație
Placă
Din blocuri
Stil arhitectural
Tip Hambar
Contemporan
European
Modern
Caracteristici exterioare
Balcon
Terasă din lemn
Fereastră de colț
Terasă deasupra garajului
Ferestre mari
Ferestre de la podea la tavan
Caracteristici interioare
Șemineu în living
Dormitor matrimonial la etaj
Dormitoare grupate
Bucătărie închisă
Living mare
Bucătărie mare
Bucătărie și sufragerie
Cămară
Zonă de luat masa
Insulă de bucătărie
Garaj
9: 23 m²
Mașini: 1
Atașat
Acces Frontal
Acoperiș
Suprafața acoperișului: 138.00m²
În două ape
Fereastră de mansardă
Lucarnă
Coamă perpendiculară pe stradă
Unghiul acoperișului : 45º (±2º)
Arhitect
ARCHIPELAG ARCHIPELAG Birou de arhitectură country with code pl Poland
country with code pl Poland
Lower Silesian Voivodeship, Wrocław, ul. Aleksandra Ostrowskiego 9/318
Pachet de proiect

Proiectul de casă ar putea să nu respecte reglementările de construcție din țara ta.

Arhitectul nu vinde concept digital și documentația de execuție pentru țara dvs. Puteți bifa căsuța „Norme compatibile” și vedea „Pachet de proiect” pentru țara arhitectului.

Cât va costa construcția?
Deviz
81
Acest deviz îți va oferi estimări de costuri în funcție de locație și materialele de construcție.